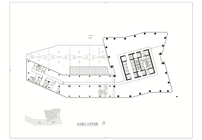
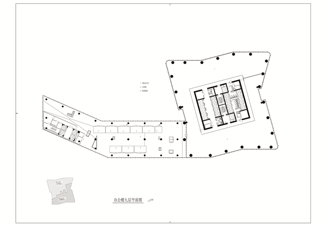
城市综合体

北京财富中心

发布时间:[2019-01-30]华体会官方网页版:

 

建筑面积:一期246000平方米;二期305000平方米

项目地点:北京

设计时间:一期:2000年;二期:2006

2002年第九届首都十佳建筑奖第九名

2006年中国机械工业集团公司科学技术二等奖专家评比三等奖

2009年机械工业优秀工程设计奖综合奖一等奖

第二届中国建筑学会建筑设备(给水排水)优秀设计奖